Projet Garage en bureau, Warden
Détails du projet
- transformation garage en bureau, bureau sur mesure lumineux, porte-patio quadruple, plancher surélevé, mobilier intégré sur mesure, design intérieur Montérégie, aménagement espace de travail, rénovation intérieure Warden, bureau fonctionnel et élégant
- Warden, Québec
Transformation de garage en bureau sur mesure à Warden en Montérégie
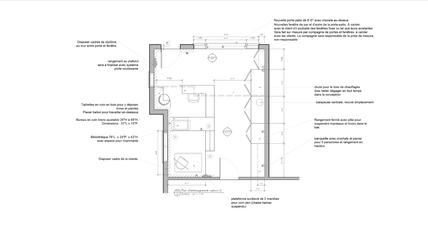
Le projet Warden en Montérégie illustre la capacité de Signé AMO Design à transformer des espaces résidentiels existants en environnements de vie adaptés aux besoins contemporains. Ici, un garage traditionnel a été métamorphosé en un bureau sur mesure lumineux et fonctionnel, pensé pour conjuguer confort, efficacité et esthétisme.
Dès le départ, la cliente souhaitait un lieu de travail adapté au télétravail, tout en conservant la flexibilité d’un retour à l’état initial. C’est pourquoi nous avons préservé les dimensions de la porte originale du garage. Cette approche garantit une réversibilité intelligente de l’espace, permettant de revenir à sa fonction première sans frais importants.
Afin d’optimiser la luminosité et de créer une atmosphère conviviale, une porte-patio quadruple a été intégrée, apportant une généreuse lumière naturelle et une ouverture sur l’extérieur. Ce choix architectural a non seulement amélioré l’esthétique du lieu, mais aussi contribué au bien-être et à la productivité de la cliente.
Sur le plan technique, une solution économique et ingénieuse a été mise en place : la création d’un plancher surélevé. Celui-ci permet le passage des installations électriques sans avoir à entailler la dalle de béton existante, réduisant ainsi les coûts de rénovation tout en préservant la structure.
L’ensemble du mobilier a été conçu sur mesure pour exploiter chaque centimètre disponible. Espaces de rangement intégrés, plan de travail ergonomique et finitions personnalisées reflètent un design à la fois pratique et élégant. Ce projet démontre que même les volumes souvent sous-utilisés comme les garages peuvent devenir des espaces raffinés, polyvalents et adaptés aux nouvelles réalités.
Avec AMO Design, chaque rénovation intérieure en Montérégie devient une solution créative, durable et harmonieuse.
Avant
Après
Votre projet mérite la même attention
Ce projet vous a inspiré? Que ce soit pour un projet résidentiel ou commercial, une seule pièce ou votre maison au complet, AMO Design transforme vos idées en espaces élégants et fonctionnels.
