Projet Agrandissement Comptois, Granby
Détails du projet
- agrandissement maison Granby, salle de séjour familiale, aménagement au-dessus du garage, design intérieur lumineux, espace polyvalent haut de gamme, rénovation résidentielle Granby, confort et élégance, AMO Design
- Granby, Québec
Projet d’agrandissement à Granby : salle de séjour familiale au-dessus du garage
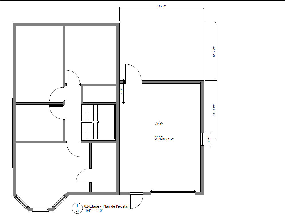
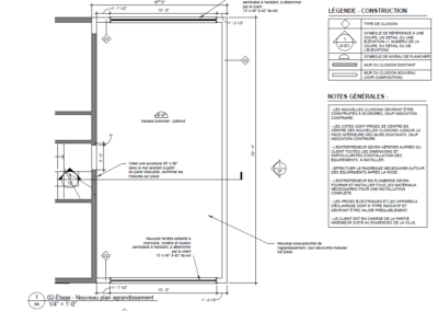
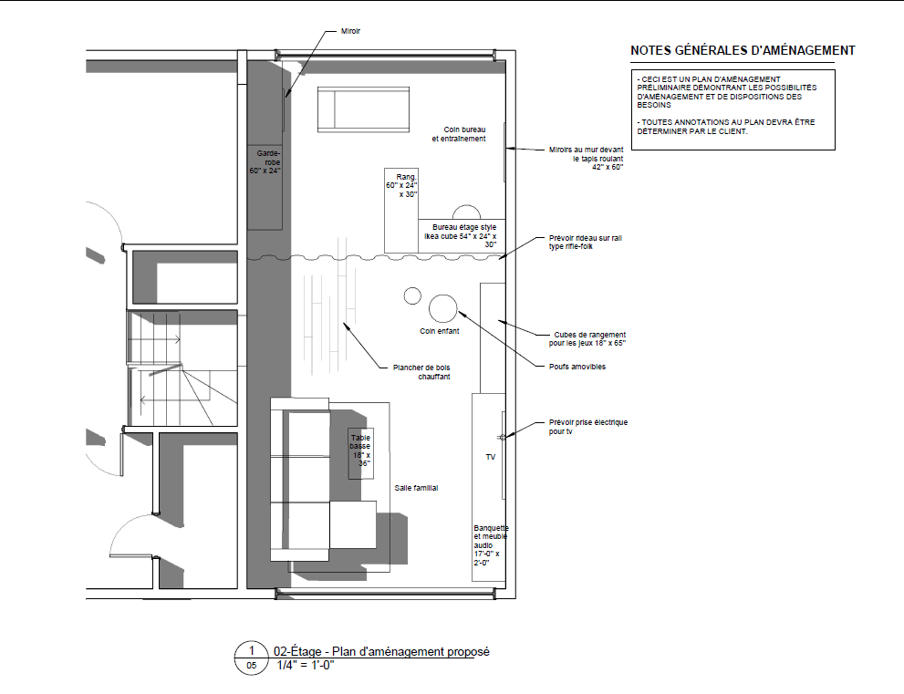
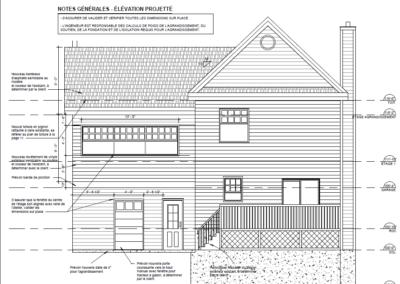
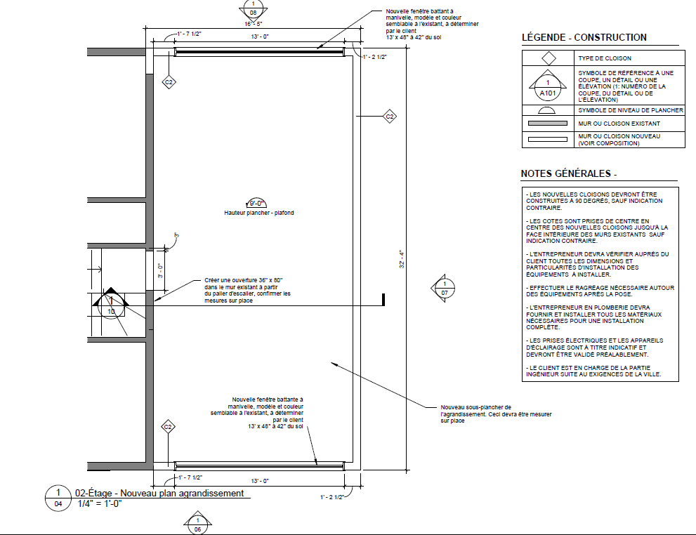
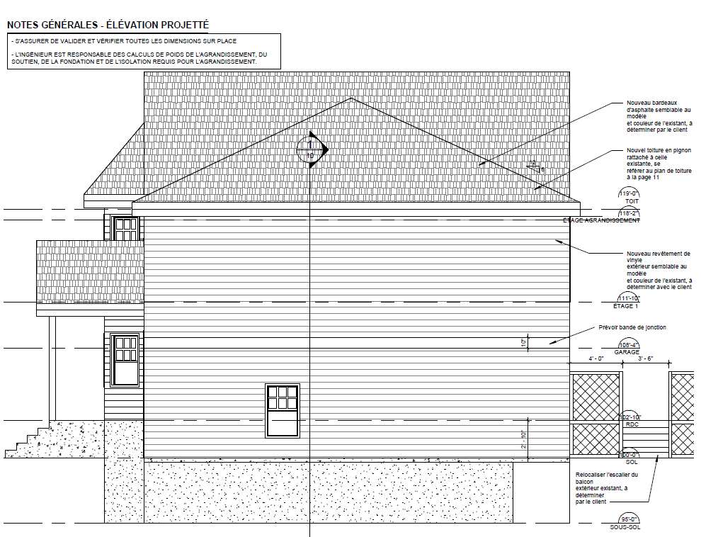
Ce projet d’agrandissement à Granby illustre la capacité d’AMO Design à transformer un volume sous-utilisé en un espace de vie lumineux et convivial. L’intervention portait sur l’aménagement d’une salle de séjour familiale au-dessus du garage, pensée pour rassembler parents et enfants dans un cadre chaleureux et polyvalent.
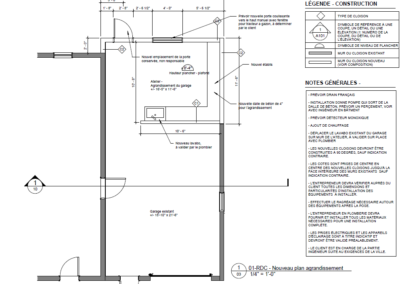
L’objectif principal était de concevoir un lieu où chacun puisse se détendre, jouer ou partager des moments en famille, tout en s’assurant d’une intégration harmonieuse avec l’architecture existante de la maison. Pour y parvenir, une étroite collaboration avec des experts en construction et en ingénierie a été menée, garantissant une conception sécuritaire, durable et parfaitement adaptée à la structure en place.
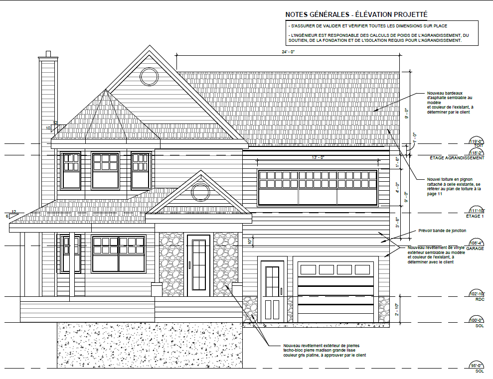
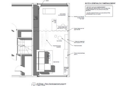
Chaque détail de ce nouvel espace a été réfléchi pour maximiser la fonctionnalité, la luminosité naturelle et le confort quotidien. Les grandes ouvertures apportent une clarté abondante, tandis que l’agencement intérieur favorise la fluidité et la convivialité. Le mobilier et les finitions ont été choisis pour marier modernité, élégance et simplicité, renforçant ainsi l’intemporalité du design.
Le résultat est une salle de séjour haut de gamme, parfaitement intégrée au style de la résidence, qui allie esthétisme et praticité. Cet agrandissement offre désormais aux occupants un lieu de vie unique : un espace où se détendre après une journée active, où les enfants peuvent s’amuser librement, et où la famille se réunit pour partager des instants précieux.
Avec AMO Design, chaque projet d’agrandissement devient une opportunité de créer des environnements lumineux, chaleureux et durables.
Votre projet mérite la même attention
Ce projet vous a inspiré? Que ce soit pour un projet résidentiel ou commercial, une seule pièce ou votre maison au complet, AMO Design transforme vos idées en espaces élégants et fonctionnels.
